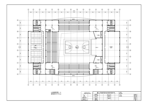
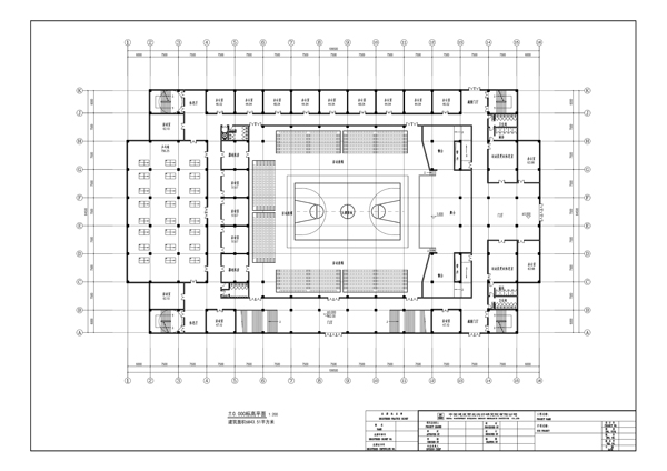
临潼校区9#文体楼是集展演、比赛、训练、平时使用于一身的多功能校园文体中心,其设计方案是在发展规划处采集的概念性设计方案基础上,经陕西省招标办公室公开招标而确定。2016年9月30日及10月21日,基建处两次组织校内相关职能处室及设计院对该方案进行优化,形成现有方案。现将该项目的设计方案向广大在校师生公布,征集师生的建议和意见,以便使方案更加完善。意见征集时间:2016年11月21日至2016年11月25日。
项目概况:1、建设地点:临潼校区体育场北侧。
2、建筑层数:地上二层,地下一层。
3、总建筑面积:13922.30m2。
联系方式:522945279@qq.com
联系人:牛瑞文
联系电话:62779081
联系地点:临潼校区22—8 404室
基建处
2016年11月18日










